80W Monitoring Smart Pole Wind Turbine Solar Panel Street Light System

Customization: Available
Condition: New
Certification: ISO, CE

Product Description

i

Basic Information

Application
Home, Industrial, Commercial
Specification
Normal, 10000W
Solar Panel Type
Monocrystalline Silicon
Controller Type
MPPT (12V, 10A)
Load Power
100W
Work Time
24 Hours
Battery
12.8V 30Ah, IP66 (Lead-Acid/Lithium Iron Phosphate)
Mounting Type
Ground Mounting
Output Voltage
DC12V / DC24V / DC9V
Box Material
Aluminum Castings
Solar Panel
100W Mono
Capacity
60000 Sets/Year
S

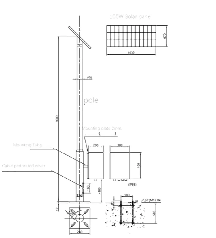
Product Specification

No. Name Specs Unit Qty
1Solar panel and bracket100W mono solar panelpc1
2MPPT Controller12V, 10Aset1
3Waterproof battery box12.8V 30Ah, IP66pc1
4Connector, GlandRST16I3/2S B1 M02 SW stainless steel 304, ∅20set1
5Water monitoring controllerRTU DIT-RTU-90 (Monitoring: pH, Dissolved Oxygen, Turbidity, Temp, etc.)set1
6Monitoring pole3 meters high, hot galvanized spray polepc1
7AccessoriesScrews and special cablesset1
F

Product Features

  • Matches capacity based on local solar resources and load power.
  • Ensures continuous and stable 24-hour power supply for all monitoring equipment.
  • Supports 5-7 days of continuous operation during rainy weather.
  • Provides multi-voltage output (DC12V / DC24V / DC9V) simultaneously.
  • High-performance Lithium Iron Phosphate battery (working range -40ºC to +60ºC).
  • Integrated lightning protection technology for stable operation during thunderstorms.
  • Advanced MPPT controller ensures zero interference with monitoring signals.

Successful Stories

C

Certifications & Packing

?

Frequently Asked Questions

How long does the battery last on rainy days?
The system is designed to provide 5-7 days of continuous power supply during rainy or cloudy weather, which can be further customized based on specific requirements.
What output voltages can the system provide?
This solar monitoring system can provide DC12V, DC24V, and DC9V output voltages simultaneously to accommodate various types of monitoring equipment.
Is the system protected against environmental interference?
Yes, the system utilizes special lightning protection technology and an MPPT controller to ensure signals are transmitted without interference, even during thunderstorms.
What is the operating temperature range for the battery?
The high-performance energy storage equipment (Lithium Iron Phosphate) operates effectively in temperatures ranging from -40 ºC to +60 ºC.
What parameters can the water monitoring controller track?
The RTU can monitor a wide range of parameters including permanganate, total phosphorus, total nitrogen, ammonia nitrogen, pH, dissolved oxygen, conductivity, turbidity, and temperature.
Is the system suitable for 24-hour operation?
Yes, the system is engineered to provide stable power 24 hours a day, ensuring all connected monitoring devices remain active at all times.

Related Products